本文部分圖片源自Design Cool設計酷官方微信
設計的本質是創造,是無中生有,設計師的工作空間是產出想法與概念的行動源頭,是一個充滿想像力的基地,因而,設計師在設計自己的工作空間是帶著科幻未來感,宛如電影場景般,道具陳設感極重,欲以層出不窮的狂想力配置出空間需求。
空間的變化與延展
Variations and Expansion in Space


(圖)視角:大門內與外。



設計師用兩個單位元去做出多重組構與延展以因應不同空間性格;一個是方塊單元,一個是曲線單元, 方塊單元使用在沙發、地毯、樓梯梯面上,讓方塊形布在上下左右的多元向度里,拉出立體層次感,以定義出一樓空間可多重組構的開放性,如:機動性的家居配置、沙龍型的小型演講場所與聚談空間,並以可開闔九十度的透明鋼構大門,連接延伸至室外,微暗示里外的閉合關系。




曲線單元則以黑色鋼板一片片疊砌出幾何形狀,扭轉、切割、如雕塑般有機形變出一個結合水吧、行政櫃臺與餐桌的大桌臺。


二樓工作桌則以細部卡榫接合片狀鋼板,以形制出宛如蝴蝶般如輕亦重的結構體,對稱的造型,讓工作時可移動的幅度動線更流暢。





經過數位設計,再以黑色鋼板一片片疊砌出幾何形狀,扭轉、切割、如雕塑般有機形變出一個結合水吧、行政櫃臺與餐桌的大桌臺。
工作空間的定義
Defining the Work Space





一樓公共空間,二樓為工作室,中心設計大桌子以方便討論,所有附屬機能如電子屏幕、櫃子、打印機室、建材室、書籍等配置在空間周邊,無設置主管辦公室,每個員工可靈活走動、交流,自由選擇工作場景。


工作即生活:戶外設置水池與大量綠化,以及室內設計廚房與餐桌,加上天花板鋪設大片竹子,增添休閑感場景。
材料的純粹
The Purity of Material




本案以木頭、鋼構、藝術漆簡單元素鋪築天地壁以作出空間純粹感,以應合本設計公司的宗旨:用材料本質去表達對設計的態度與純粹感。

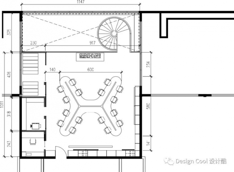
▲九號設計集團廣州辦公室一樓平面圖

▲九號設計集團廣州辦公室二樓平面圖
項目信息
項目名稱:九號設計集團廣州辦公室
設計公司:九號設計集團
主創設計師:李東燦
參與設計師:陳俊凱、劉晉誠
項目地點:中國廣州市
空間形式:辦公室
施工日期:2019.5-2019.10
完工日期:2019.10
室內坪數:一樓200平方米,二樓130平方米(共330平方米)
材質:黑鐵、黑色玻璃、金屬網、特殊漆、天然竹子、環塑木、石英磚
關於9 Studio Design Group九號設計集團
9 STUDIO DESIGN GROUP 是一個強調整體整合設計之專業團隊,從事建築設計、室內設計,及環境景觀設計等多元經營之設計公司,成立於2005年,主要業務以集合住宅、獨棟住宅、商業空間、辦公室之建築及室內設計為主。
本公司主要的特色在於結合藝術、場所及都市等多重文化議題,依循空間主體性質,演繹空間的自明性。我們認為每個空間應有其自身散發出的一種特有的表情,這個表情除了建 立在我們對空間組成的基本看法,更重要的是空間本身的使用性質及使用者對於空間的使
用態度,空間的表達不只是一種形式,它更是一種行為模式,每個案件皆是我們與使用者共同激發、成長與成就的一個全新的作品。

9 Studio Design Group創始人李東燦先生
ABOUT US
9 STUDIO DESIGN GROUP 是一個強調整體整合設計之專業團隊,從事建築設計、室內設計,及環境景觀設計等多元經營之設計公司,成立於2005年,主要業務以集合住宅、獨棟住宅、商業空間、辦公室之建築及室內設計為主。2015年成立中國廈門九昊裝飾設計有限公司。
本公司主要的特色在於結合藝術、場所及都市等多重文化議題,依循空間主體性質,演譯空間的自明性。我們認為每個空間應有其自身散發出的一種特有的表情,這個表情除了建立在我們對空間組成的基本看法,更重要的是空間本身的使用性質及使用者對於空間的使用態度,空間的表達不只是一種形式,它更是一種行為模式,每個案件皆是我們與使用者共同激發、成長與成就的一個全新的作品。
李東燦先生為本集團的創始人,主要負責集團品牌建設, 市場開發, 策略規劃以及主導本集團的創意設計與設計質量控制。
作為臺灣設計的領軍人物,以「空間說書人」之姿,引領設計趨勢向前,囊括英國 International Property Awards 五星獎、韓國 K-DESIGN AWARD
最高榮譽獎、德國紅點設計大獎及海內外多項權威性獎項。善於結合藝術、場所及都市等多重文化議題,依循空間主體性質,演譯空間的自明性。主張每個空間應有其自身散發出的一種特有的表情,這個表情除了建立在我們對空間組成的基本看法,更重要的是空間本身的使用性質及使用者對於空間的使用態度,空間的表達不只是一種形式,它更是一種行為模式,每個項目皆是與用戶共同激發、成長與成就的一個全新的作品。
部分得獎紀錄
2019
臺灣 華人金創獎 概念設計類 金獎
臺灣 華人金創獎 商業空間類 銀獎
杜拜 DUBAI International Competition 餐飲空間類 BEST TO BEST
杜拜 DUBAI International Competition 概念設計類 金獎
杜拜 DUBAI International Competition 商業空間類 銀獎
英國 WIN Awards 室內設計類 銅獎
中國 INTERIOR DESIGN china CLUB Top50
英國 WIN Awards 室內設計類 銅獎
德國 Novum Design Award 室內設計類 金獎
德國 Novum Design Award 室內設計類 銀獎
中國 中國國際空間設計大賽 商品房/樣板房工程類 金獎
英國 International Property Awards 室內樣板房類 五星獎
義大利 A' Design Award 室內空間及展覽設計類 銀獎
2018
臺灣 ADA 亞洲設計獎 零售空間組 銀獎
美國 Spark Design Awards 空間設計類 銅獎
臺灣 金點設計獎 空間設計類 年度最佳設計獎
德國 German Design Award 室內建築類 特別提名獎
中國 APDC AWARDS 餐飲空間 大獎
中國 APDC AWARDS 樣板房 佳作
美國 Architecture Master Prize 商用室內 年度傑出建築大獎
美國 Architecture Master Prize 零售室內 年度傑出建築大獎
美國 Architecture Master Prize 其他空間 年度傑出建築大獎
韓國 K-DESIGN AWARD 最高榮譽獎
臺灣 TID Award 2018 商業空間類|餐飲空間TID獎
德國 紅點傳達設計大獎 Honorable Mention
日本 JCD Design Award BEST100
義大利 A' Design Award 金獎
英國 International Property Awards 五星獎
OPEN Design 動能開啟傳媒:http://www.openworld.tv/talk/